Тургенево

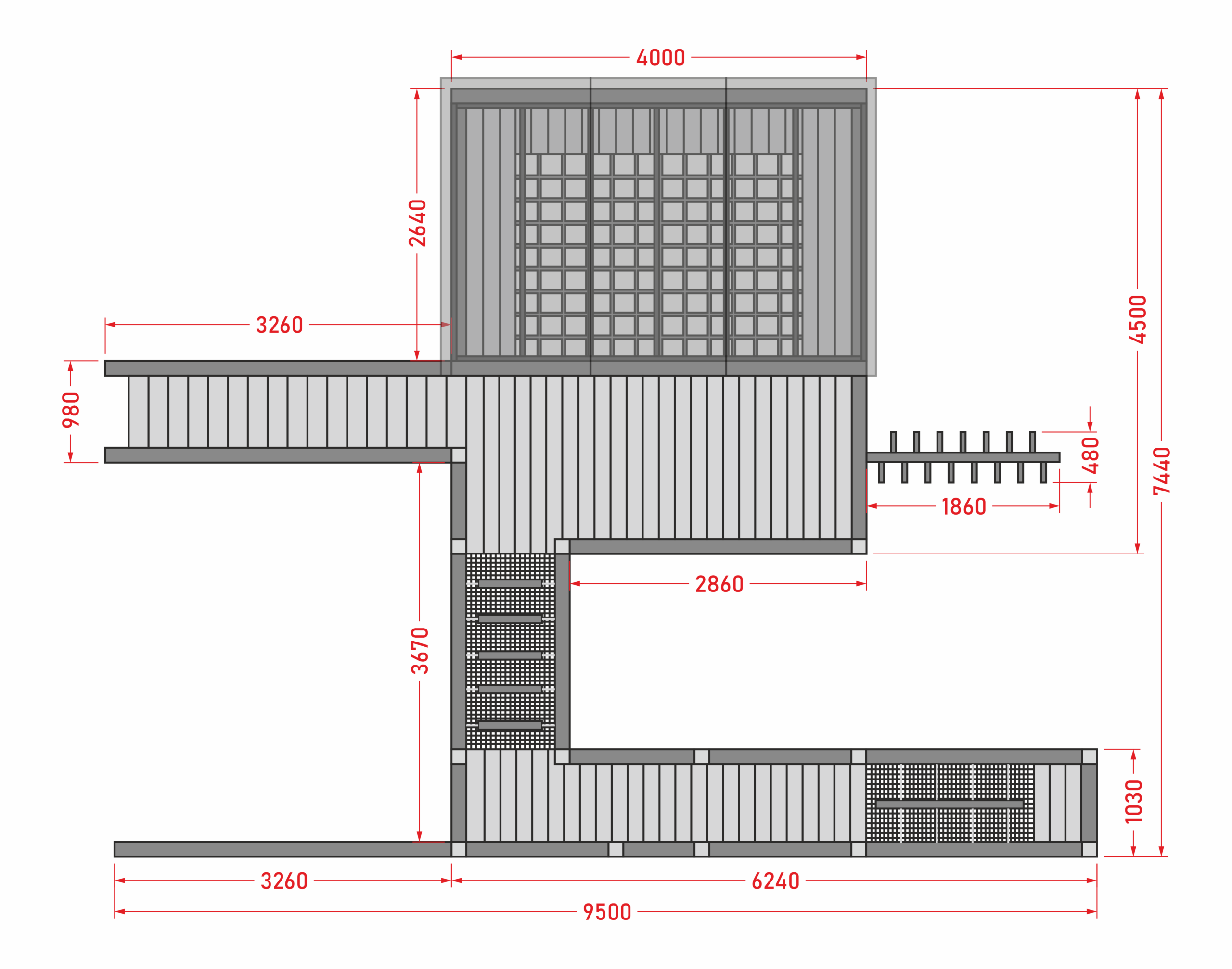
Детский игровой комплекс представляет собой двухэтажное пространство для различных активностей. На первом этаже расположена небольшая полоса препятствий и песочница для творческих игр, а для отдыха здесь установлены уютные кресла-коконы. Подняться наверх можно по оригинальным лестницам или по скалодрому. Второй этаж включает в себя открытую зону с подвесными препятствиями, а также крытую площадку с горизонтальной сеткой для отдыха и гамаком.

Расположение: Лен. Обл., КП Небо, городской посёлок Кузьмоловский.

Год: 2022

Размер: 9м х 11 м

СПИСОК ОБОРУДОВАНИЯ

1. Скалодром
2. Лазательные стены
3. Лестница с косыми перекладинами
4. Наклонная лестница
5. Сеть горизонтальная под навесом
6. Полоса препятствий
7. Кресла коконы
8. Гамак
9. Песочница
10. Ногоход зиг-заг
11. Подвесное бревно

План

Похожие проекты

Медное озеро

Сосны

Сосны общественная

Псков

Озерный рай

Зеленогорск

Большие пороги

Раменское

Апраксин

Гречухино

Парголово

Сад времени

Ламбери

Огонек

Балтийская слобода

Агаглатово

Правдинское

Медное озеро 2

Песочный

Небо