Сосны

Проект представляет собой масштабный многоуровневый комплекс, органично интегрированный в ландшафт участка. Основу конструкции составляет мощнейший разноуровневый каркас из клееного бруса крупных сечений. Уровни соединяются между собой лестницами, переходами и мостиками. Важный элемент комплекса большая изогнутая горка, которая на мгновения дарит райдеру ощущение свободного падения. Для маленьких детей предусмотрена отдельная безопасная зона с детской горкой.
 
Таким образом комплекс удовлетворяет интересы и потребности всех членов большой семьи – от малышей до взрослых, что делает пространство комфортным для детей разного возраста.
 
Всё пространство большого комплекса занято полезными снарядами для игры и лазанья — веревочные сети, гимнастические кольца, лианы, различного вида лестницы, переходы и препятствия.
 
Натуральная цветовая гамма окраски элементов комплекса позволяет сооружению естественно выглядеть в окружении деревьев. При колоссальных размерах сооружения это оказалось, пожалуй, самым значительным технологическим достижением.
 
Встроенная светодиодная подсветка обеспечивает безопасность использования площадки в тёмное время суток и делает весь комплекс украшением территории.

Расположение: Лен. Обл., КП Небо, городской посёлок Кузьмоловский.

Год: 2022

Размер: 9м х 11 м

СПИСОК ОБОРУДОВАНИЯ

1. Кольца гимнастические
2. Рукоход зиг-заг
3. Канат джутовый 2 шт.
4. Канаты с кубиками 3 шт.
5. Скалодром двусторонний большой
6. Лестницы деревянные 4 шт.
7. Сеть наклонная
8. «Пьяная» лестница
9. Сеть лаз
10. Веревочная лестница
11. Подвесной мост
12. Наклонная сеть 2 шт.
13. Скалодром двусторонний малый
14. Сеть горизонтальная
15. Подвесное бревно
16. Пожарная труба
17. Горка малая
18. Сеть вертикальная
19. Горка большая
20. Качель «Гнездо»
21. Ногоход зиг-заг
22. Рукоход прямой
23. Рукоход из трапеций
24. Турник
25. Домик

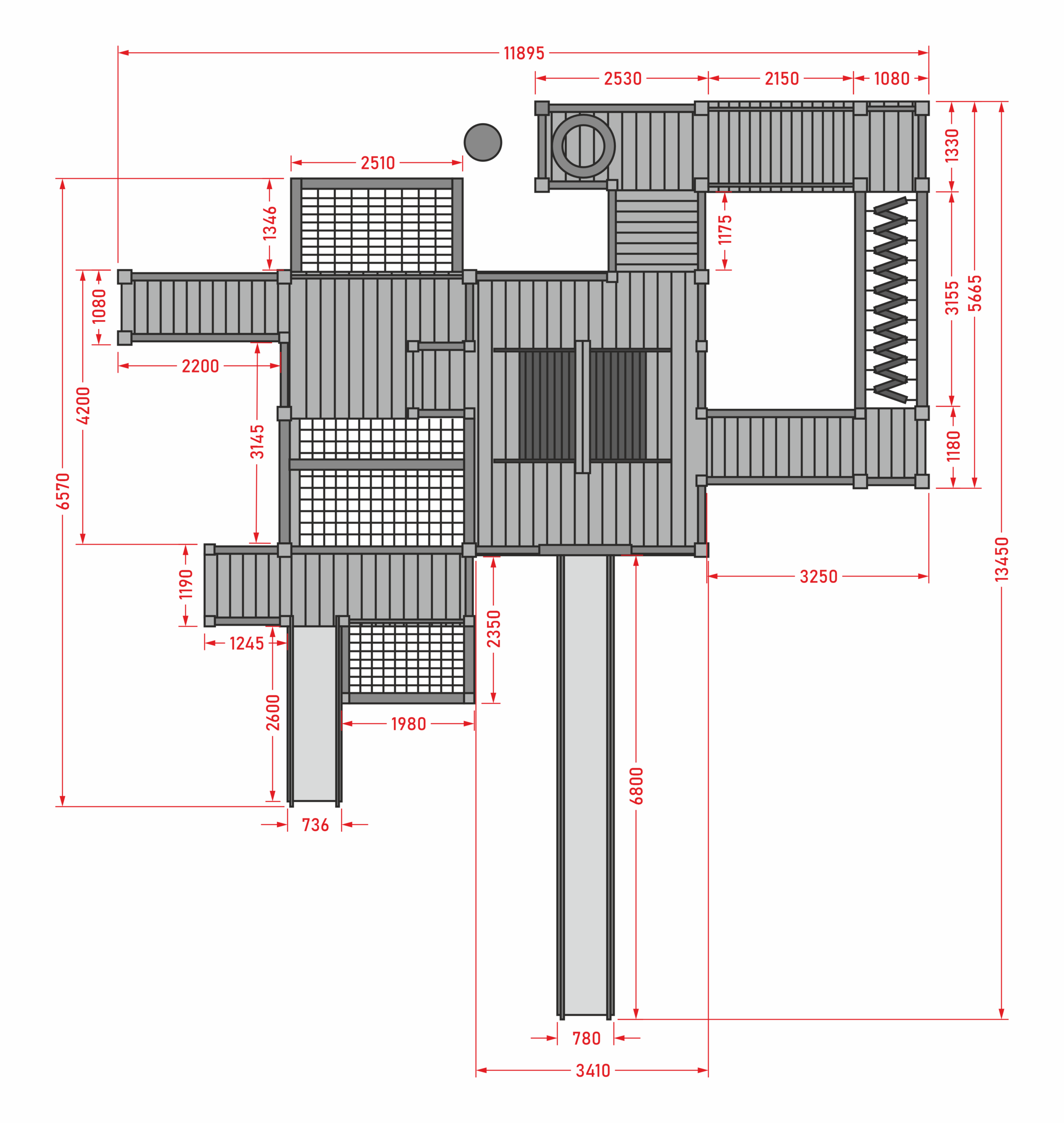
План

Похожие проекты

Медное озеро

Сосны общественная

Псков

Озерный рай

Зеленогорск

Большие пороги

Раменское

Апраксин

Гречухино

Парголово

Тургенево

Сад времени

Ламбери

Огонек

Балтийская слобода

Агаглатово

Правдинское

Медное озеро 2

Песочный

Небо