Большие пороги

Средней величины многофункциональный комплекс с богатым набором оборудования.
 
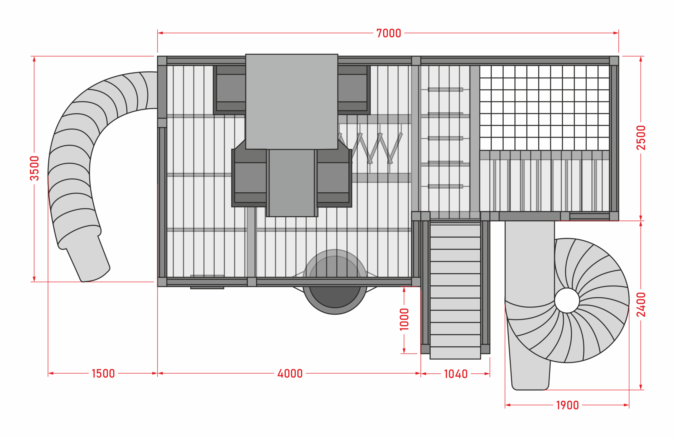
Центральным элементом верхней площадки стал домик в виде трактора легендарной модели Кировец. Это совместное с Заказчиком решение, имеющее большее значение чем просто придумка какой-нибудь машины.
 
Конструкция объединяет в себе возможность активных действий и комфорт — здесь есть большая туннельная горка и горка желоб, стена для скалолазания, а также зона с гамаком и деревянными качелями. И много чего ещё.
 
Большой общий каркас, безопасные элементы, продуманный дизайн делают эту площадку интересной и востребованной на долгие годы.

Расположение: Лен. Обл., КП Небо, городской посёлок Кузьмоловский.

Год: 2022

Размер: 9м х 11 м

СПИСОК ОБОРУДОВАНИЯ

1. Домик-трактор
2. Горка туннельная
3. Горка изогнутая
4. Качель с сиденьем
5. Качель «гнездо»
6. Рукоход зиг-заг
7. Гамак
8. Сеть вертикальная
9. Скалодром
10. Веревочная лестница 2 шт.
11. Баскетбольное кольцо
12. Кольца гимнастические
13. Рукоход трапеция
14. Сеть горизонтальная
15. Канат с таблеткой и кубиками
16. Канат джутовый

План

Похожие проекты

Медное озеро

Сосны

Сосны общественная

Псков

Озерный рай

Зеленогорск

Раменское

Апраксин

Гречухино

Парголово

Тургенево

Сад времени

Ламбери

Огонек

Балтийская слобода

Агаглатово

Правдинское

Медное озеро 2

Песочный

Небо